Icknield Port Loop development - a "deathtrap" for children?

November 2017 - Plans for the first phase of the regeneration of Icknield Port Loop have been approved by Birmingham City Council. Permission was given a week ago, after a narrow 6-5 vote, for a first tranch of 117 houses and 90 flats to be built on the massive site, bounded by Edgbaston Reservoir and the New Main line, as Allan Richards reports.

A masterplan, already approved suggests that 1,150 homes together with commercial, retail and leisure facilities will eventually be built on the 43 acre site. The developers are Icknield Port Loop LLP, which comprises of Urban Splash, Places for People, landowners Canal and River Trust and the city council.

Speaking on behalf of Places for People and Urban Splash, Adam Willetts said: "We really are thrilled to have secured planning permission and cannot wait to get started on site.

"Once transformed, this area will bring so much to Birmingham; green spaces, parks, waterfront spaces; an incredible urban island community in which people can live, work and play.

James Lazarus, head of property development at Canal and River Trust, said: "We are passionate about vibrant waterways that help to transform places and improve people’s lives.

"To see plans approved on such an important site as this is wonderful and will allow us to open up access to a previously unseen part of our network.

"It is great news for all involved, for the city and for the people who will ultimately live at this scheme."

As a property man, perhaps Mr Lararus is unaware that the Icknield Port Loop has trip boats running round it showing it off to tourists. What the tourists see is an eyesore which 'trumps the wastelands of Wolverhampton' according to one knowledgeable commentator.

However, this first phase of the development is not without its detractors, with some members of the planning committee highly critical.

Councillor Gareth Moore (Conservative) said the development seemed to have been designed with architectural awards in mind rather than providing homes.

Councillor Barry Henley (Labour) said the committee had argued against this style of housing when outline plans for the area were approved five years ago, adding: “"All of our rules we apply to housing are simply cast aside.

"We had a discussion - we said we did not want back-to-back or courtyard housing. This type of housing is not popular in the UK.

"Nobody does it in Britain. We've knocked down millions of these houses, it's absurd to build them.

"They've built up to the edge of the canal with no space for fencing to make a deathtrap for children."

Peter Osborn (Conservative) stated: “It does seem to be boxy. The glass element seems to be huge and I wonder about the privacy of the people who would live there.

"They would be in full view of people walking past and we want people to walk past. I had hoped for a better design."

Planning officers suggested that the canal side homes would not necessarily appeal to people with young children and that safety would be the responsibility of parents.

Overall not a good start.

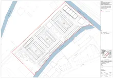
Photos: (1st) Graphic representation of the overall Icknield Port site with Edgbaston Reservoir in the foreground, (2nd) Layout of the first development, narrowly given approval by Birmingham City Council, (3rd) Artist's impression of the development, seen from the mainline. It is to be hoped that the widebeam Dutch barge featured didn't attempt to get there via Edgbaston Tunnel, which will have been narrowed by the time this is built, (4th) Artist's impression of the development seen from the loop, including a towpath that doesn't currently exist, (5th) Peter Osborn (Conservative): "I had hoped for better design", (6th) Councillor Gareth Moore (Conservative) said the development seemed to have been designed with architectural awards in mind rather than providing homes, (7th) Councillor Barry Henley (Labour): "They've built up to the edge of the canal with no space for fencing to make a deathtrap for children."

Features

To add a page, Click here to add content.